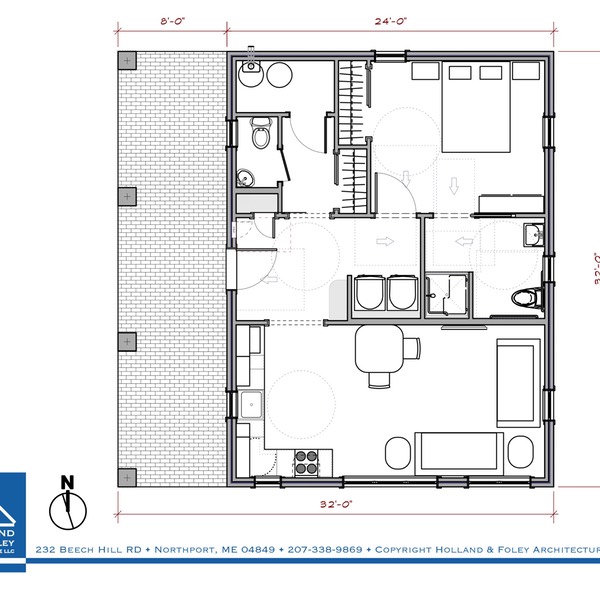
“Porch Light” Cottage. 768 square feet, plus 256 square feet covered porch. One story. Wheelchair accessible. One bedroom, one accessible bathroom, one half bath. Entry vestibule, laundry space, kitchen, dining/sitting space.
Elderly folks, and folks with mobility challenges, sometimes depend on family or caregivers, yet would like the privacy and self-reliance of an independent dwelling. This cottage can be near a family home or tucked into a neighborhood, providing accessibility and the chance to age in place gracefully. The generous porch is a sheltered place for sitting, or for pick-ups and drop-offs.