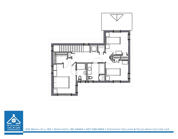
“Positive” House. 1532 square feet, plus 72 square feet covered porch. Two full stories. Three bedrooms, two and a half bathrooms. Ground floor: entry vestibule, half bath, kitchen, dining space, sitting space. Upper floor: master bedroom with ensuite bathroom, two bedrooms, full bathroom, stacked washer/dryer .
Gable roofs, hipped roofs, shed roofs — they all have their place. Shed roofs are straightforward to build, offer lofty ceiling heights to make rooms feel more spacious, and, with the right orientation, can hold a large number of solar-electric panels. This makes it possible for a household to generate as much energy per year as they will use to heat, cool, ventilate, and power the home. In some cases the household might even generate more than they use. Think positive!