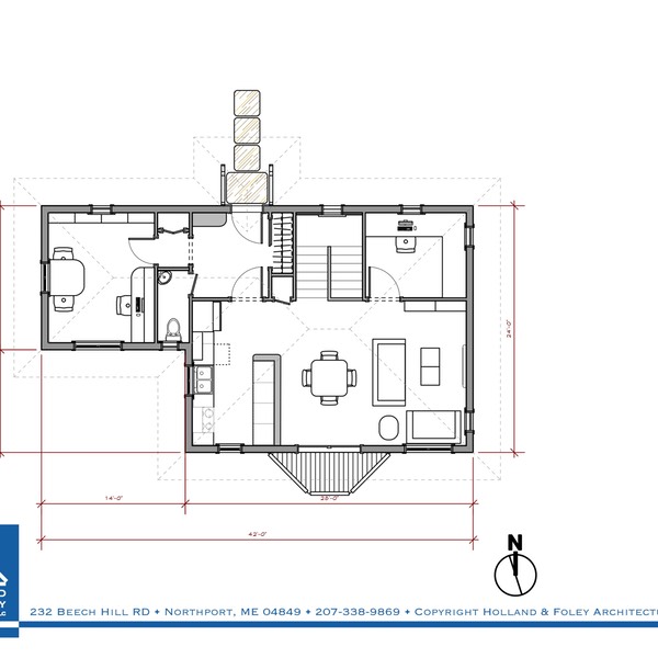
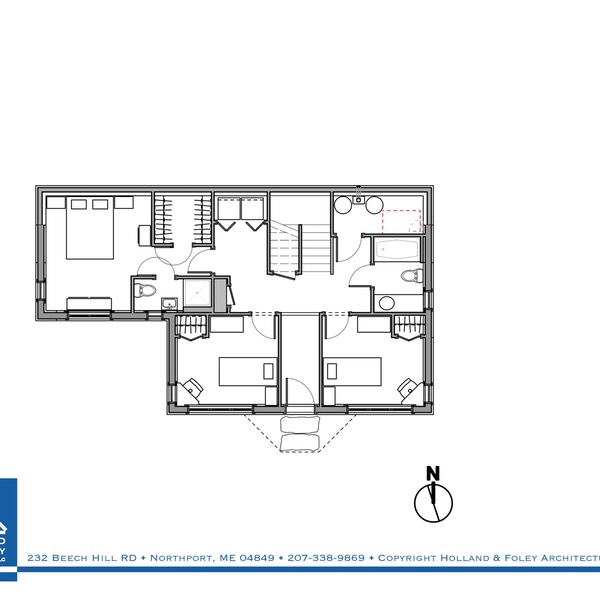
“On The Rise” House. Designed for sloping sites. Full upper story and daylight basement. 1682 square feet. Three to four bedrooms, two and a half bathrooms. Upper floor: entry vestibule, kitchen, dining space, sitting space, den/study, half bath, home office/fourth bedroom, balcony. Lower floor: two bedrooms, full bathroom, laundry space, master suite with bathroom and walk-in closet.
Few sites are flat and some are steep. We met a young family who owned a sloping lot with lovely south-facing views. The husband needed a home office. They hoped for a master suite for themselves and separate bedrooms for their children. They weren’t ready to build – but talking with them inspired us to design this home for a steep site, with living spaces on the upper floor and sleeping spaces below. The main entry leads to living spaces or a home office, with a powder room available to either. The office can be a fourth bedroom if needed. There’s an upper balcony to take in views and a den adjacent to the main living space. Whether flat or steep, we don’t fight with sites – we work with them.