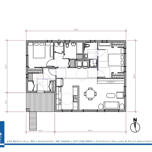
“Now & Then” House. 1164 square feet plus 96 square feet covered porch. One story. Wheelchair accessible. Two bedrooms (one accessible), two full bathrooms (one accessible), entry vestibule, laundry space, kitchen, dining space, sitting space.
We call this design “Now & Then” because it’s about time as much as space. We like designs that are “future ready,” adaptable to needs that change. Now someone’s young and healthy — what about Then? Now an aging parent can live on their own — what about Then? We designed a two-bedroom home that can be a comfortable, efficient, livable place for the long haul — for Now and Then. This design has wheelchair-accessible living spaces and an accessible bedroom/bathroom suite, plus a second bedroom and bathroom. Future ready.