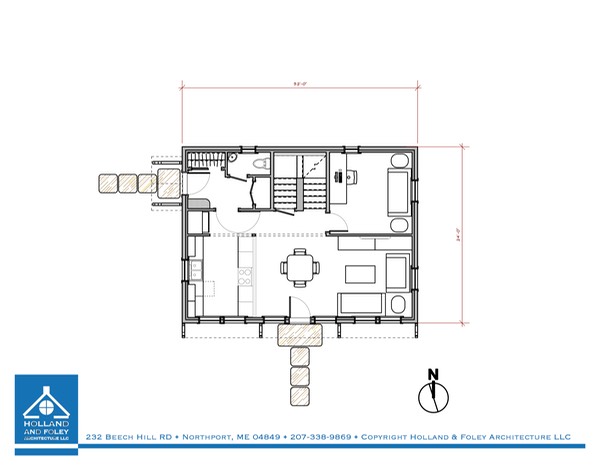
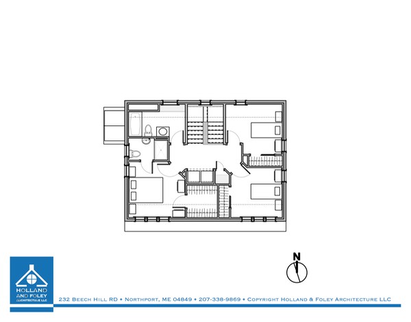
“Elbow Room” House. 1484 square feet. One and a half stories. Three bedrooms, two and a half bathrooms. Ground floor: entry vestibule, half bath, kitchen, dining space, sitting space, den/office. Upper floor: master bedroom with three-quarter bath and walk-in closet, two other bedrooms, full bathroom, laundry space.
“Small Planet Homes” includes a range of moderate, attainable, three-bedroom homes. Some people like the simplicity, compactness, and affordability of a design like “Family Plan” (1292 square feet). Other folks would like more of the amenities and space in a design like “Wide Open Spaces” (1676 square feet), but not everyone has the budget for that. “Elbow Room” bridges the gap: a little more space and features, still compact and simple to be mindful of budgets.